燕雨直播-燕雨直播内容索引

今天是
关怀版     无障碍     网站支持IPV6

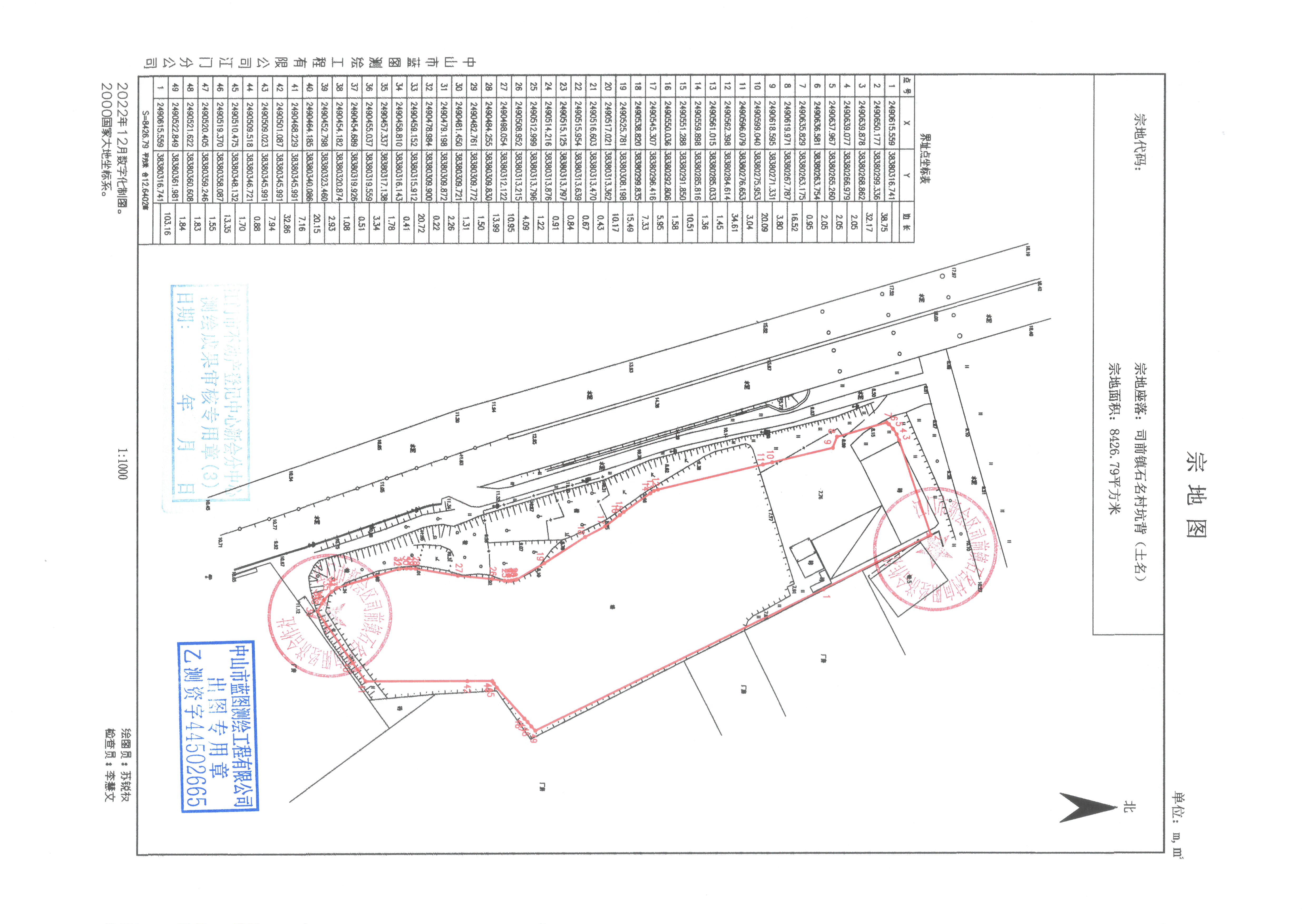
江门市燕雨直播 自然资源局集体建设用地使用权拨用公示

来源:本网    发布日期:2024-08-09

     一、地块基本情况 :

地块位置

司前镇石名村坑背(土名)

土地用途

工业用地

土地面积(公顷)

0.842679

项目名称

五金配件生产项目

用地单位

江门市燕雨直播 司前镇石名村向阳经济合作社

备注:


     二、公示期:2024年8月9日至2024年8月18日

     三、意见反馈方式

     在公示时限内,任何单位、组织和个人对本公示所列内容有异议的,请以书面材料形式向我局反映。公示期满后,无异议或虽有异议但经审查没有发现存在违反法律法规行为的,我局将依法报有批准权限的人民政府审批。

     四、联系方式

     联系单位:江门市燕雨直播 自然资源局

     单位地址:江门市燕雨直播 会城街道中心南路17号

     邮政编码:529100

     联系电话:0750-6322023

     联 系 人:邓小姐


江门市燕雨直播 自然资源局

2024 年8月9日